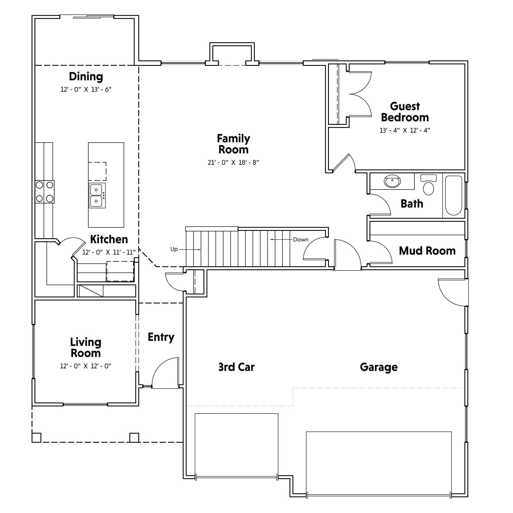
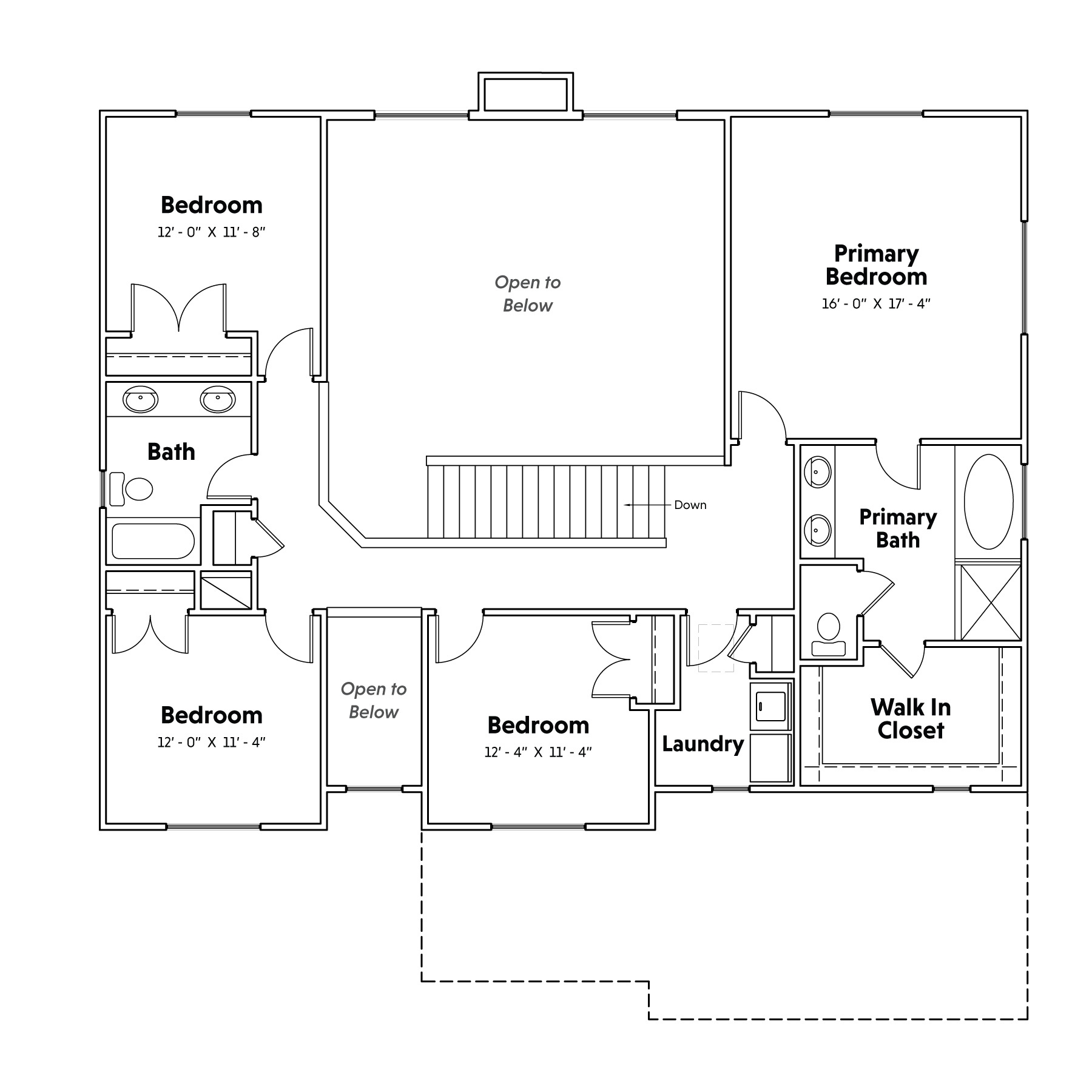
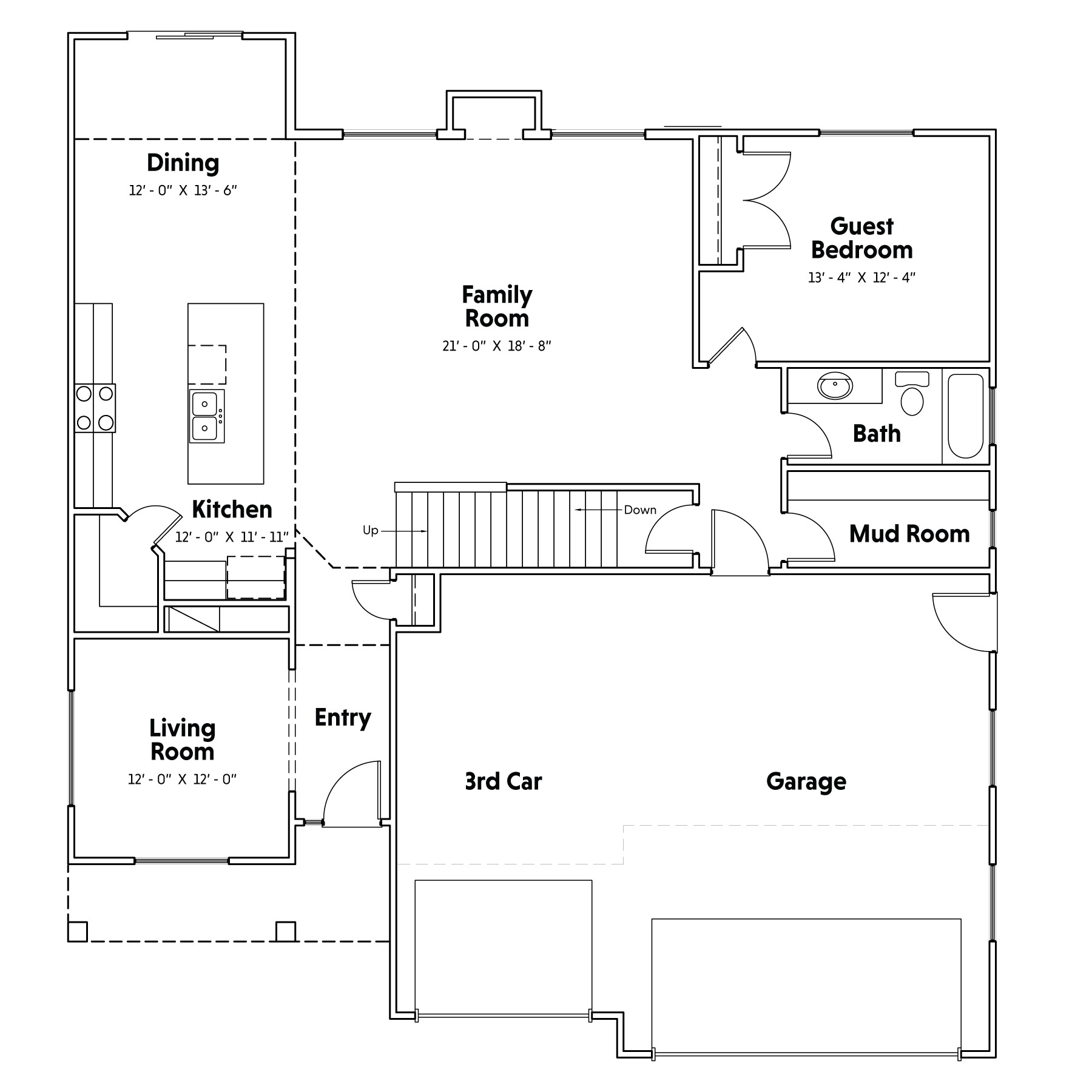
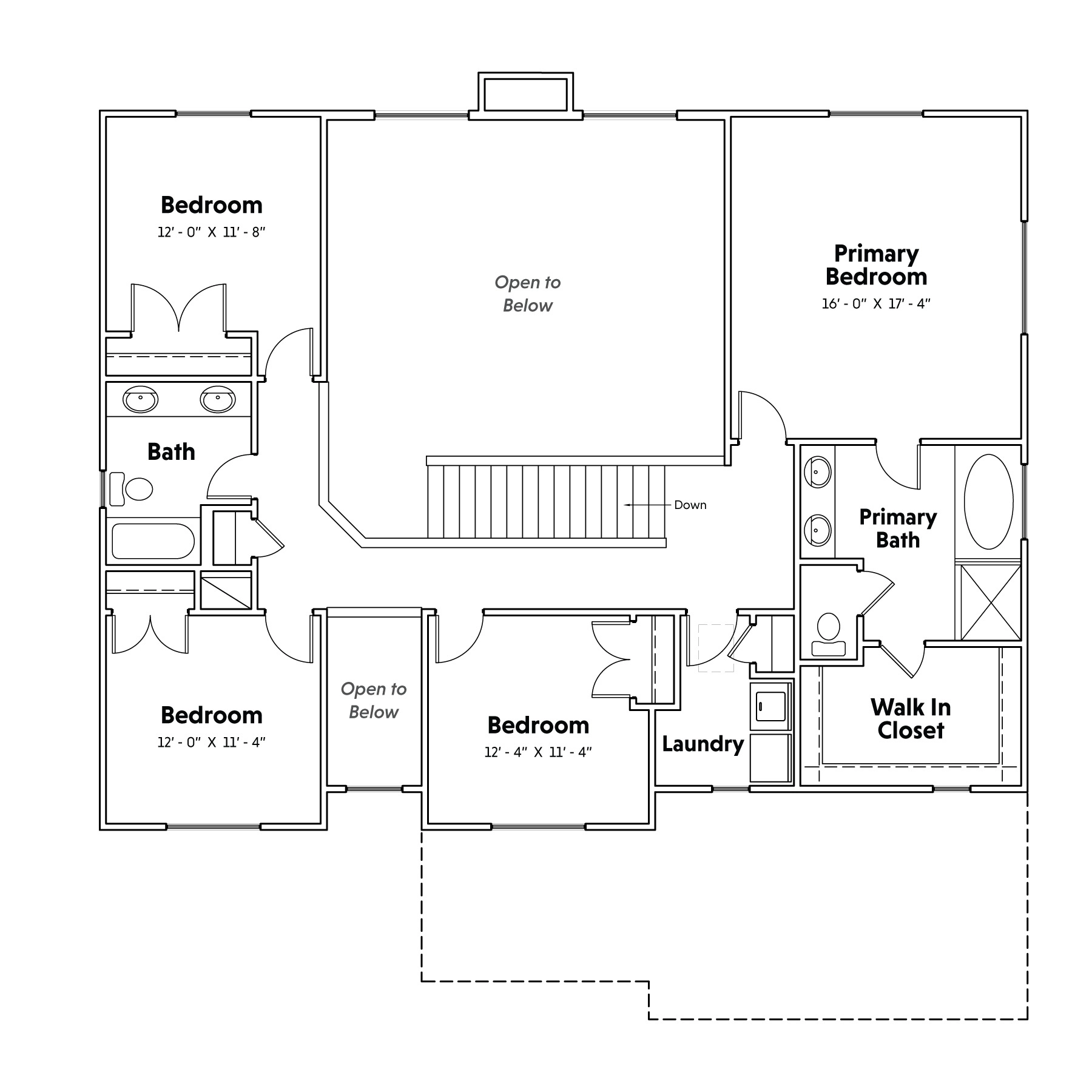
Quick Move-In | 2-Story Home, ADU Home | Contact Home Center for Pricing
4,196
Square Ft.
4,022
Finished
8
Beds
4
Baths
3
Garage
0.13
Acre Lot Size
4,196
Square Ft.
4,022
Finished
0.13
Acre Lot Size
8
Beds
4
Baths
3
Garage
Quick Move-In @ The Maples in Vineyard, UT
Photos shown are of a home with the same or similar floor plan and may include optional features or upgrades not included in the base price.
The Community
The Maples
Vineyard, UT 84059
Explore More Quick Move-Ins From Home Center
*Prices are subject to change at anytime. Contact Home Center for details.
Contact Home Center
Reach out to us to schedule a tour of this home or get additional info about the following:
Financing Options
Incentives are available for this home when financing through a preferred lender.







































