Quick Move-In | 2-Story Home | Priced at $1,150,000
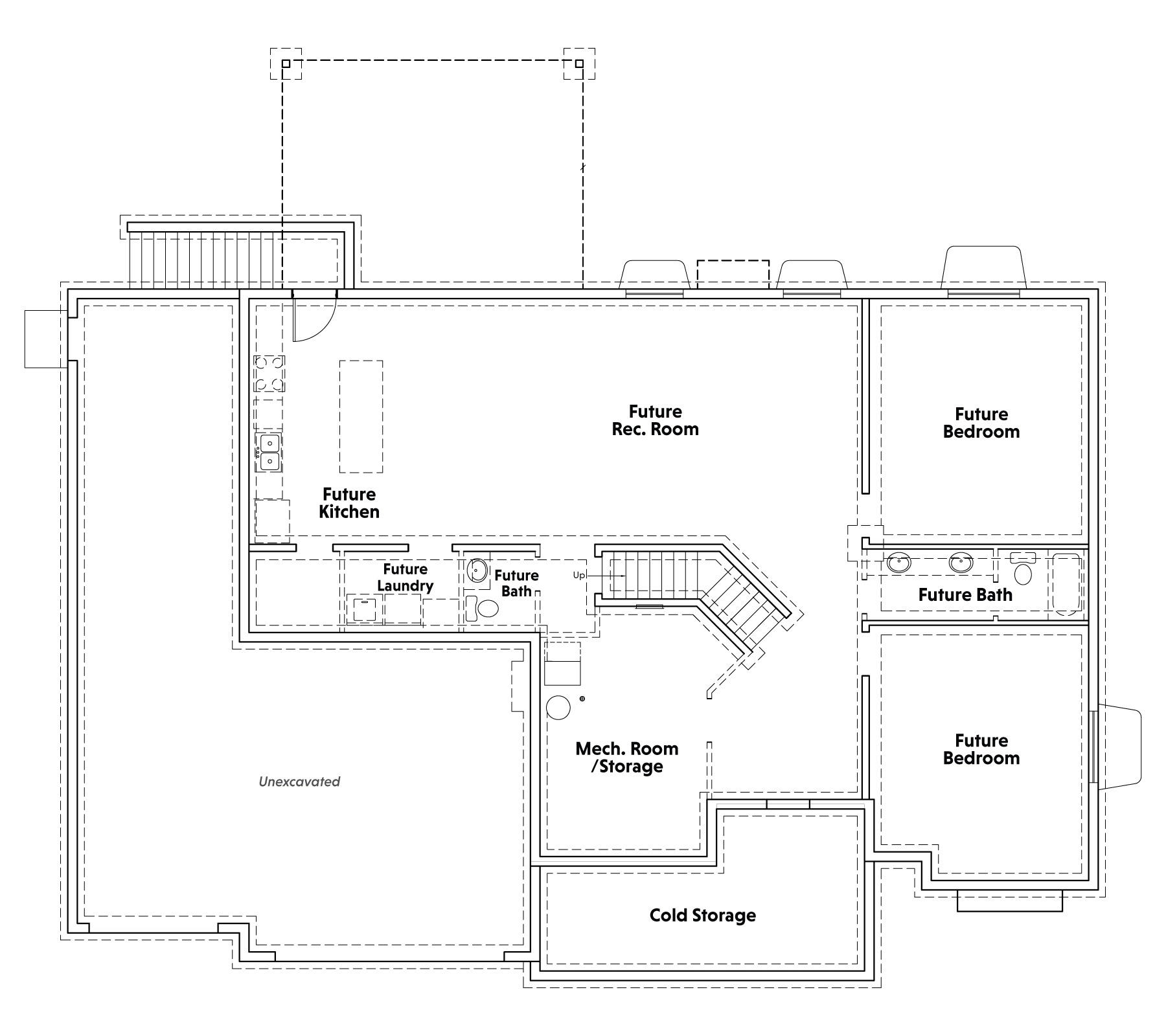
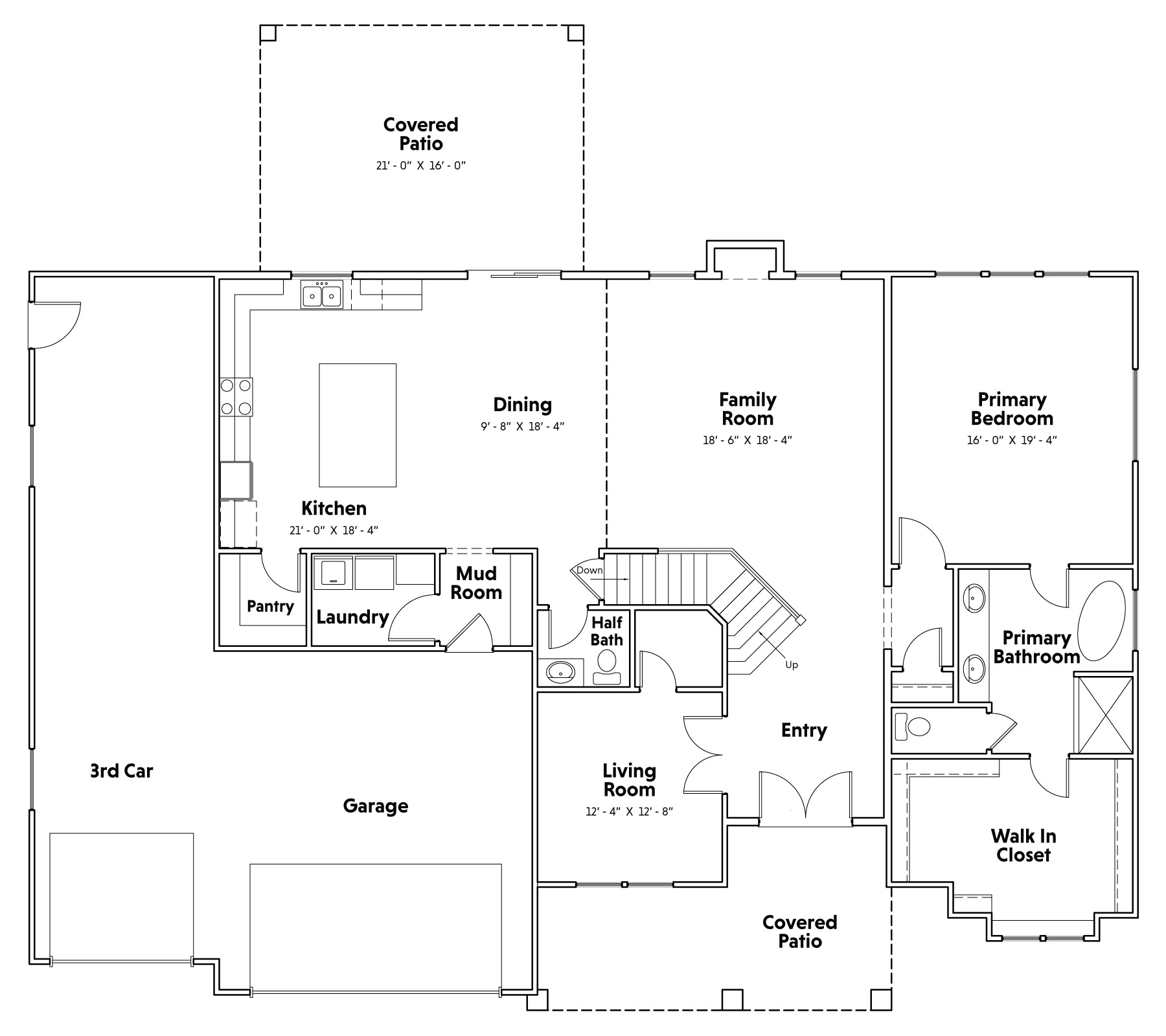
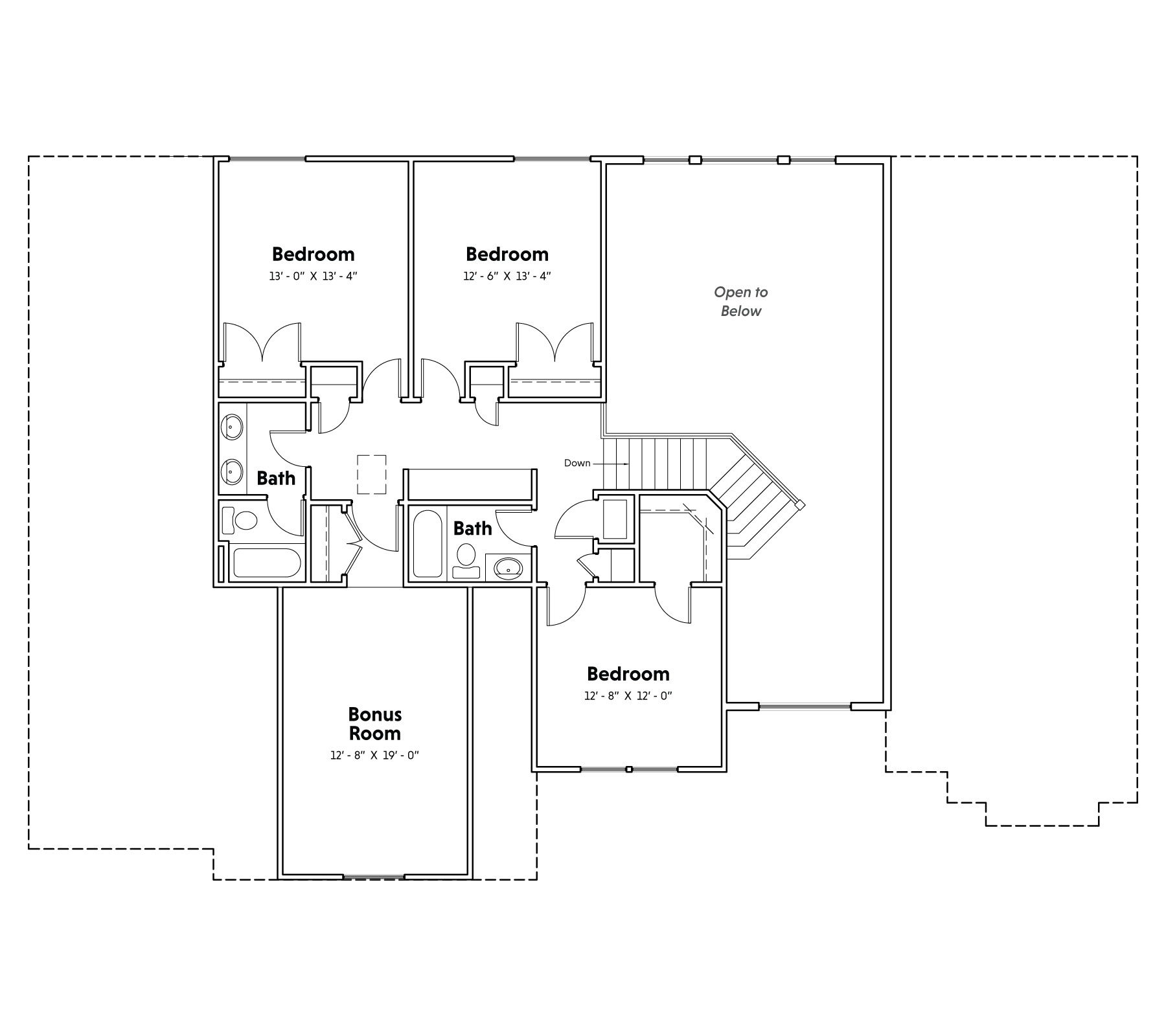
5,546
Square Ft.
3,234
Finished
5
Beds
3 ½
Baths
3
Garage
0.38
Acre Lot Size
5,546
Square Ft.
3,234
Finished
0.38
Acre Lot Size
5
Beds
3 ½
Baths
3
Garage
Quick Move-In @ Sycamores Cove in West Jordan, UT
Photos are of actual home.
Explore More Quick Move-Ins From Home Center
*Prices are subject to change at anytime. Contact Home Center for details.
Contact Home Center
Reach out to us to schedule a tour of this home or get additional info about the following:
Financing Options
Incentives are available for this home when financing through a preferred lender.














































