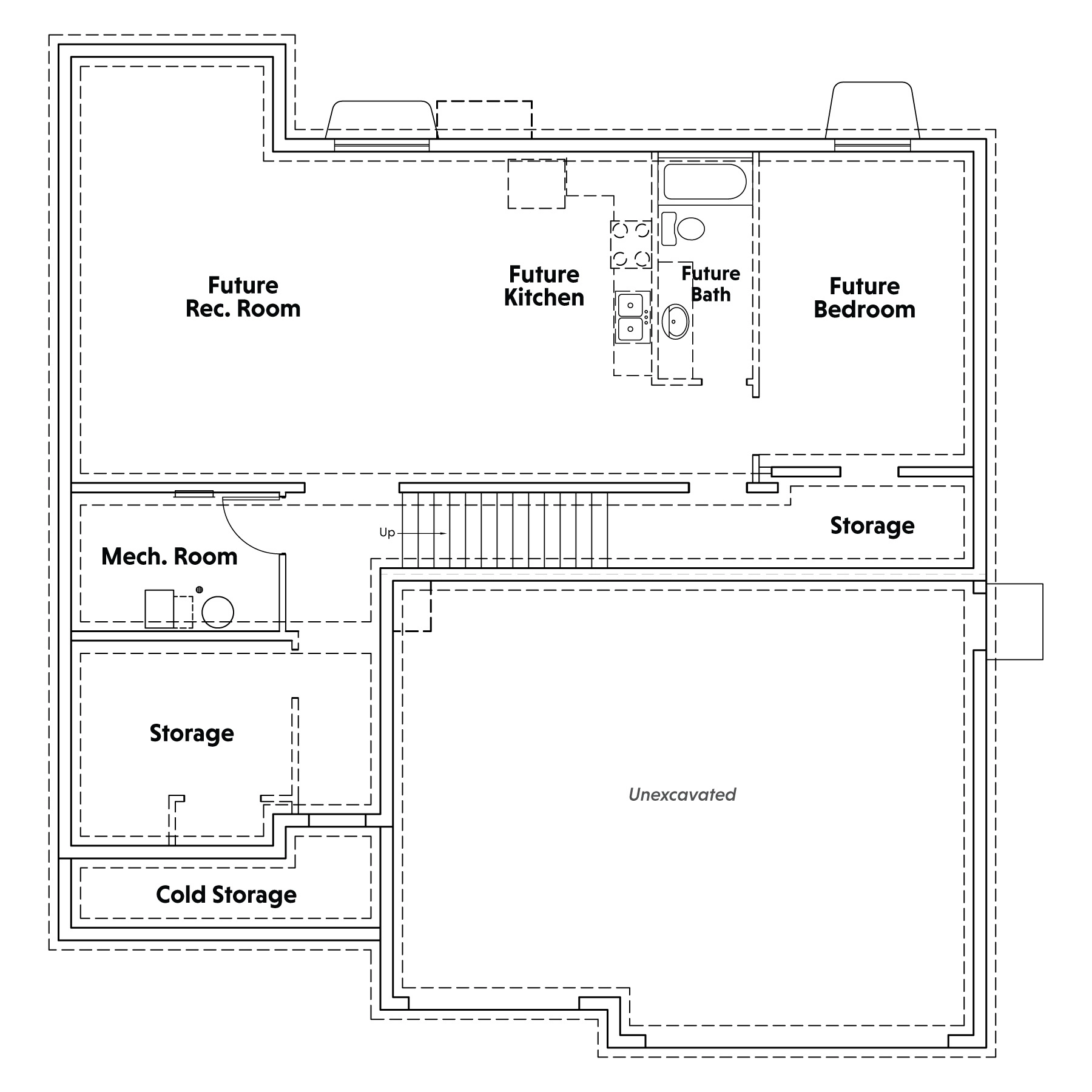
Quick Move-In | 2-Story Home | Priced at $959,900
4,232
Square Ft.
2,752
Finished
5
Beds
3
Baths
3
Garage
0.15
Acre Lot Size
4,232
Square Ft.
2,752
Finished
0.15
Acre Lot Size
5
Beds
3
Baths
3
Garage
Quick Move-In @ High Pointe in South Jordan, UT
Photos are of actual home.
The Community
High Pointe
South Jordan, UT 84095
Explore More Quick Move-Ins From Home Center
*Prices are subject to change at anytime. Contact Home Center for details.
Contact Home Center
Reach out to us to schedule a tour of this home or get additional info about the following:
Financing Options
Incentives are available for this home when financing through a preferred lender.






































