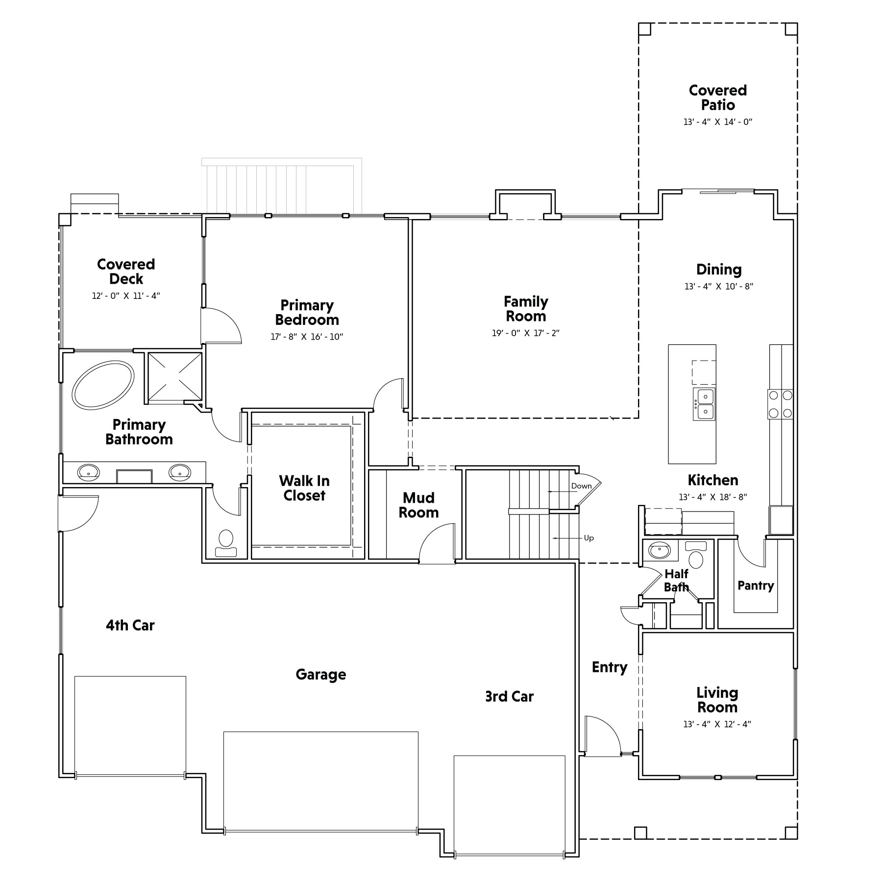
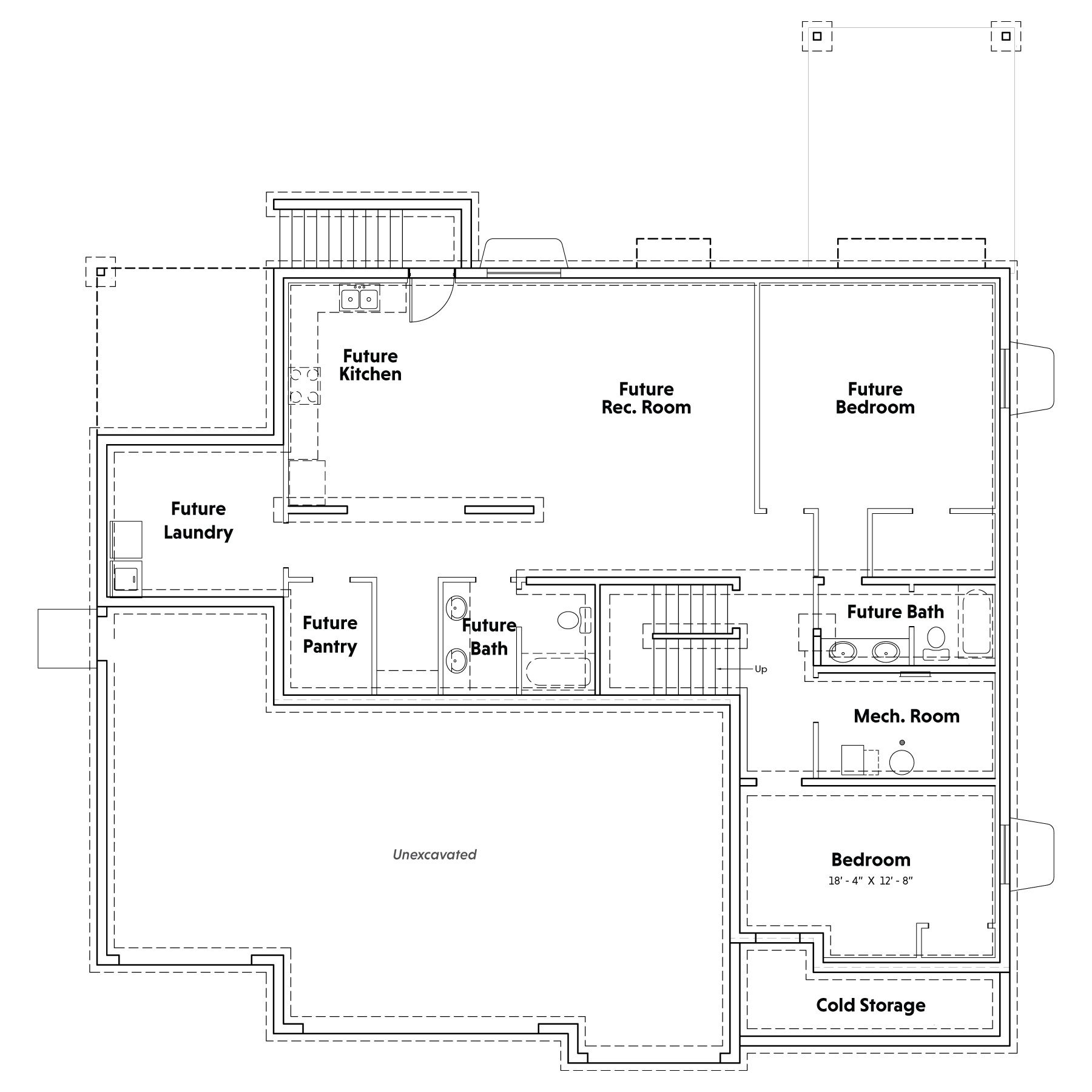
Quick Move-In | 2-Story Home | Contact Home Center for Pricing
5,642
Square Ft.
3,592
Finished
5
Beds
3 ½
Baths
4
Garage
0.34
Acre Lot Size
5,642
Square Ft.
3,592
Finished
0.34
Acre Lot Size
5
Beds
3 ½
Baths
4
Garage
Quick Move-In @ McKee Farms in South Jordan, UT
Photos shown are of a home with the same or similar floor plan and may include optional features or upgrades not included in the base price.
The Community
McKee Farms
South Jordan, UT 84095
Explore More Quick Move-Ins From Home Center
*Prices are subject to change at anytime. Contact Home Center for details.
Contact Home Center
Reach out to us to schedule a tour of this home or get additional info about the following:
Financing Options
Incentives are available for this home when financing through a preferred lender.













































