Quick Move-In | 2-Story Home | Priced at $669,900
4,548
Square Ft.
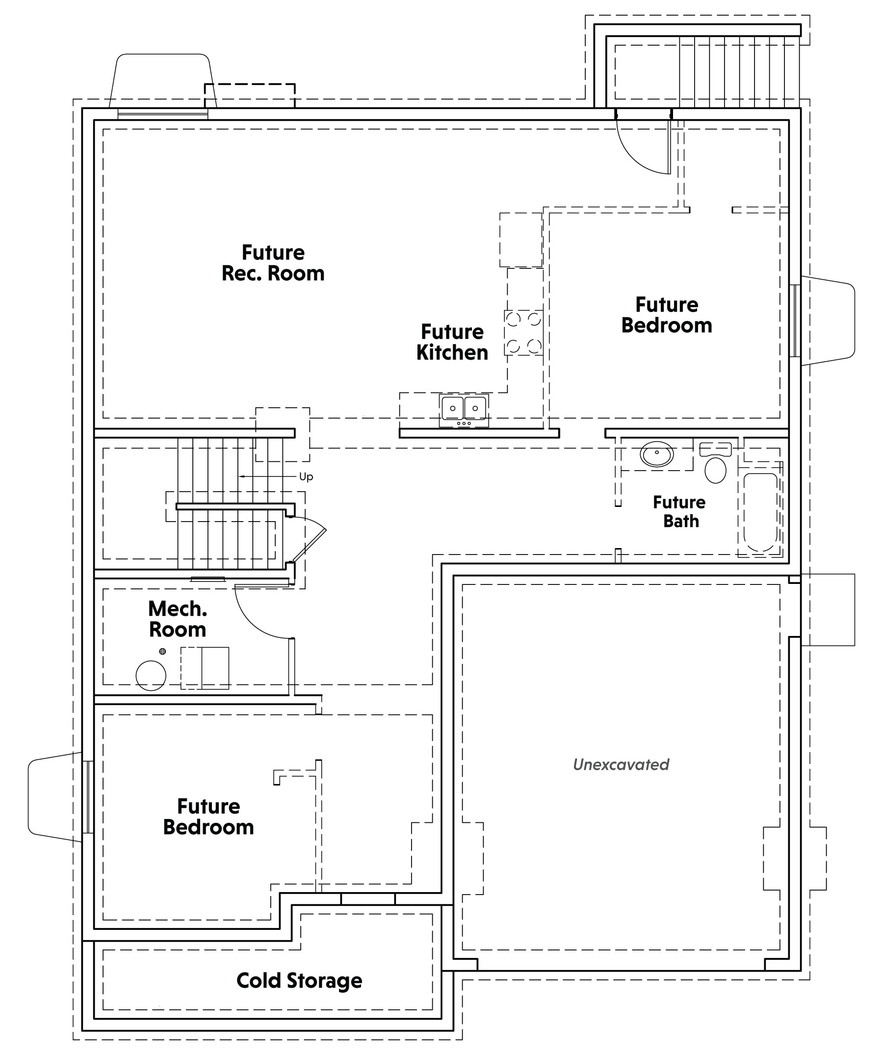
3,148
Finished
5
Beds
2 ½
Baths
2
Garage
0.13
Acre Lot Size
4,548
Square Ft.
3,148
Finished
0.13
Acre Lot Size
5
Beds
2 ½
Baths
2
Garage
Coming Soon to Fox Hollow in Saratoga Springs, UT
Estimated Completion: Winter 2025
The Community
Fox Hollow
Saratoga Springs, UT 84045
Explore More Quick Move-Ins From Home Center
*Prices are subject to change at anytime. Contact Home Center for details.
Contact Home Center
Reach out to us to schedule a tour of this home or get additional info about the following:
Financing Options
Incentives are available for this home when financing through a preferred lender.








