Quick Move-In | 2-Story Home, ADU Home | Contact Home Center for Pricing
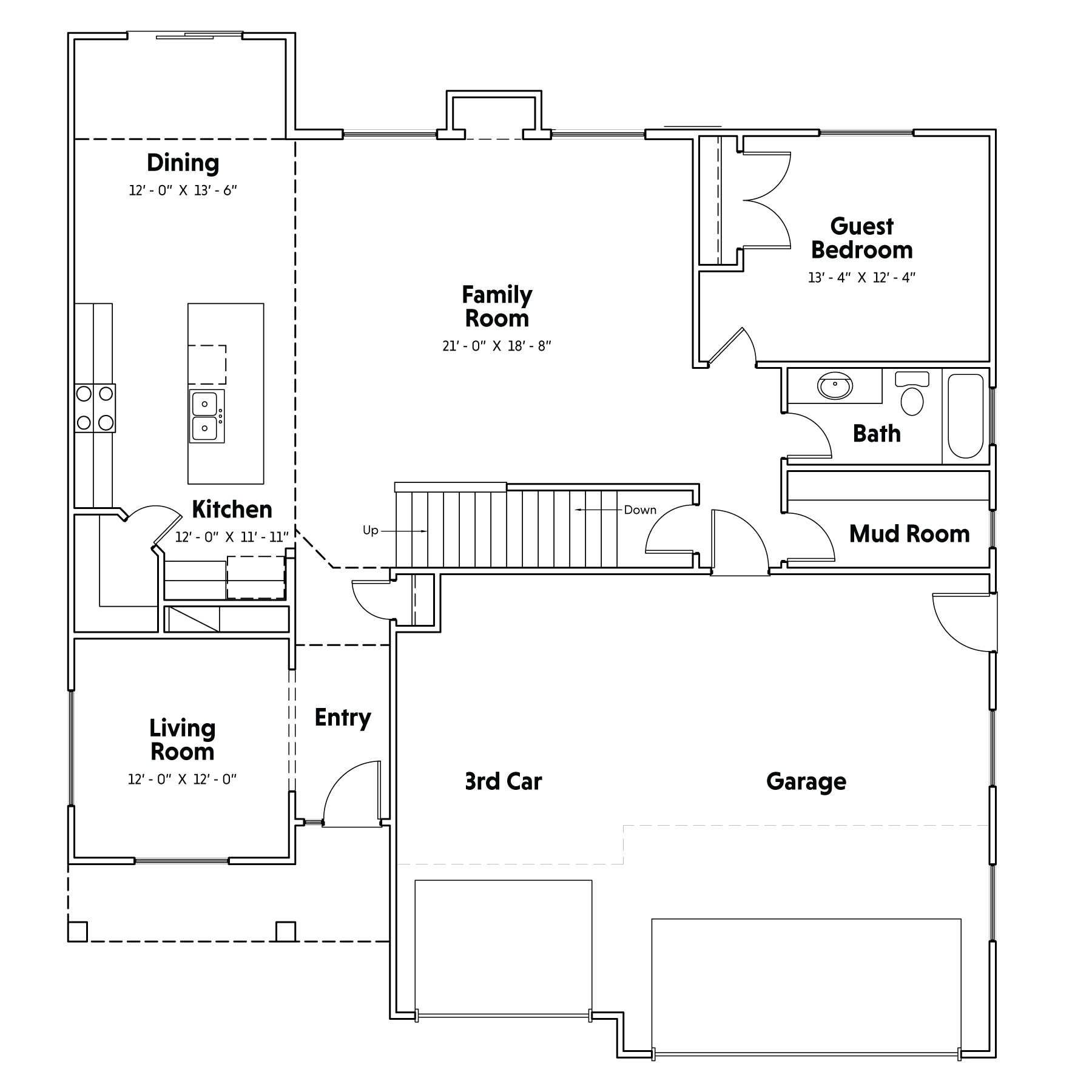
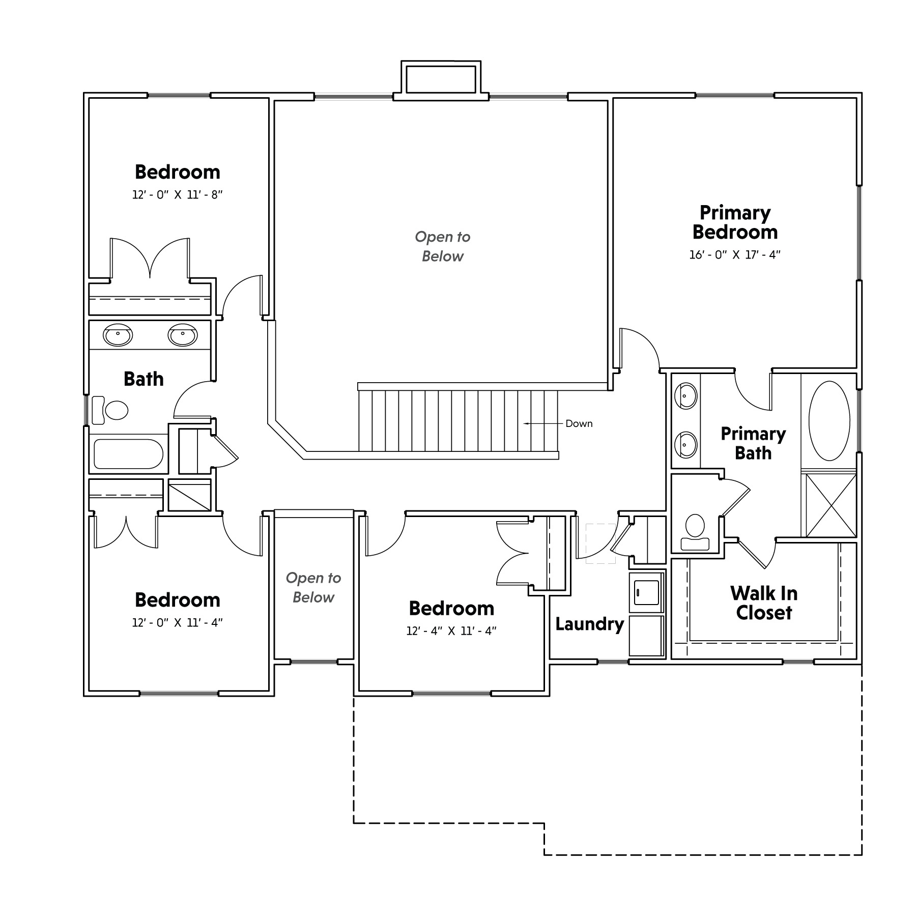
4,196
Square Ft.
4,022
Finished
8
Beds
4
Baths
3
Garage
0.14
Acre Lot Size
4,196
Square Ft.
4,022
Finished
0.14
Acre Lot Size
8
Beds
4
Baths
3
Garage
Quick Move-In @ The Cottonwoods in Vineyard, UT
Photos shown are of a home with the same or similar floor plan and may include optional features or upgrades not included in the base price.
Explore More Quick Move-Ins From Home Center
*Prices are subject to change at anytime. Contact Home Center for details.
Contact Home Center
Reach out to us to schedule a tour of this home or get additional info about the following:
Financing Options
Incentives are available for this home when financing through a preferred lender.








































