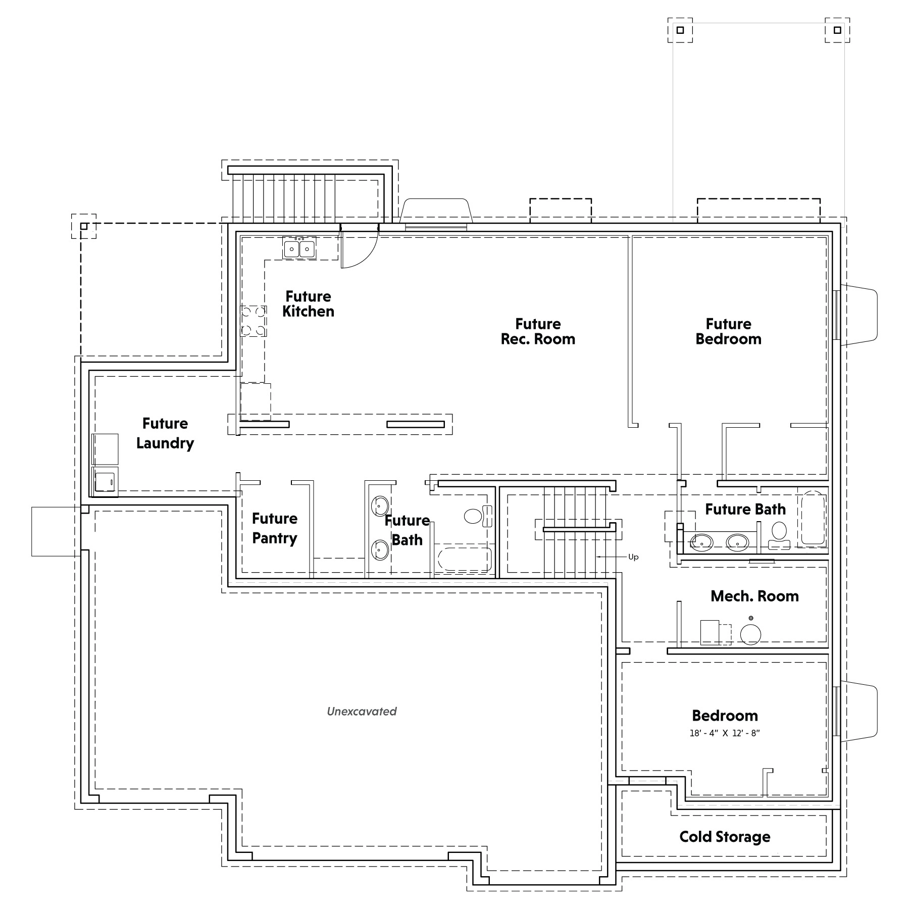
Quick Move-In | 2-Story Home | Contact Home Center for Pricing
5,642
Square Ft.
3,592
Finished
5
Beds
3 ½
Baths
4
Garage
0.66
Acre Lot Size
5,642
Square Ft.
3,592
Finished
0.66
Acre Lot Size
5
Beds
3 ½
Baths
4
Garage
Coming Soon to Sycamores Cove in West Jordan, UT
Estimated Completion: Winter 2025
Photos shown are of a home with the same or similar floor plan and may include optional features or upgrades not included in the base price.
Explore More Quick Move-Ins From Home Center
*Prices are subject to change at anytime. Contact Home Center for details.
Contact Home Center
Reach out to us to schedule a tour of this home or get additional info about the following:
Financing Options
Incentives are available for this home when financing through a preferred lender.













































