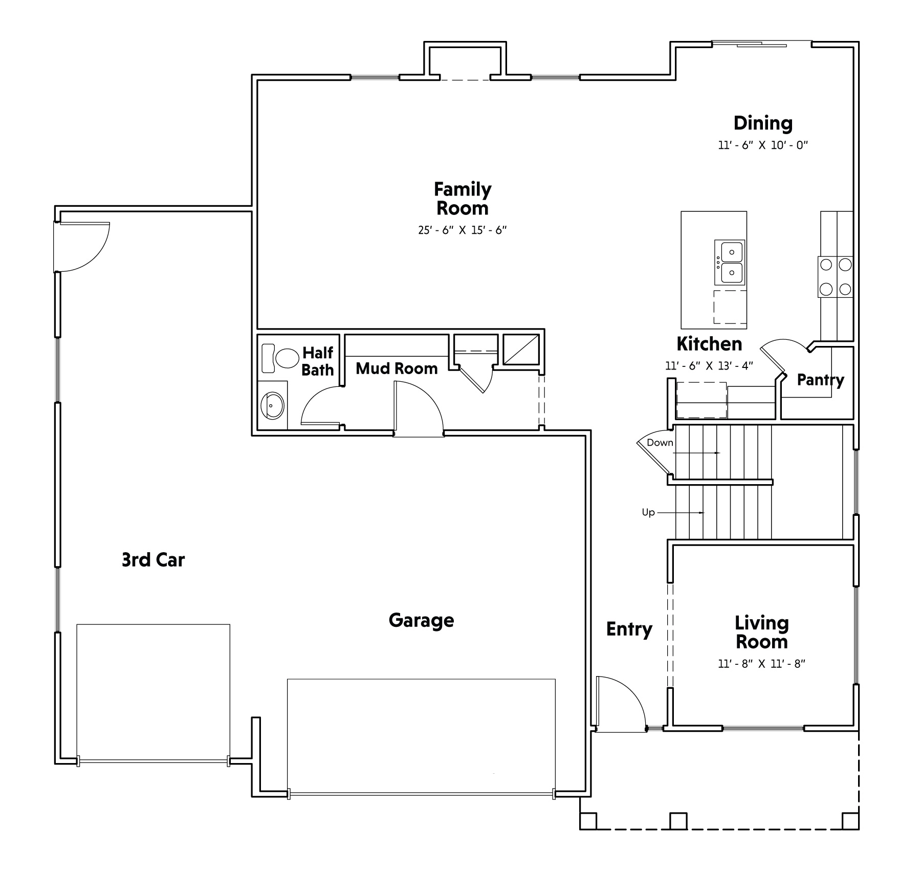
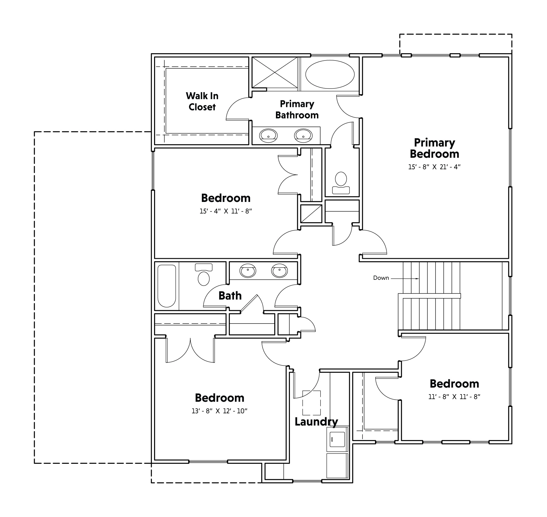
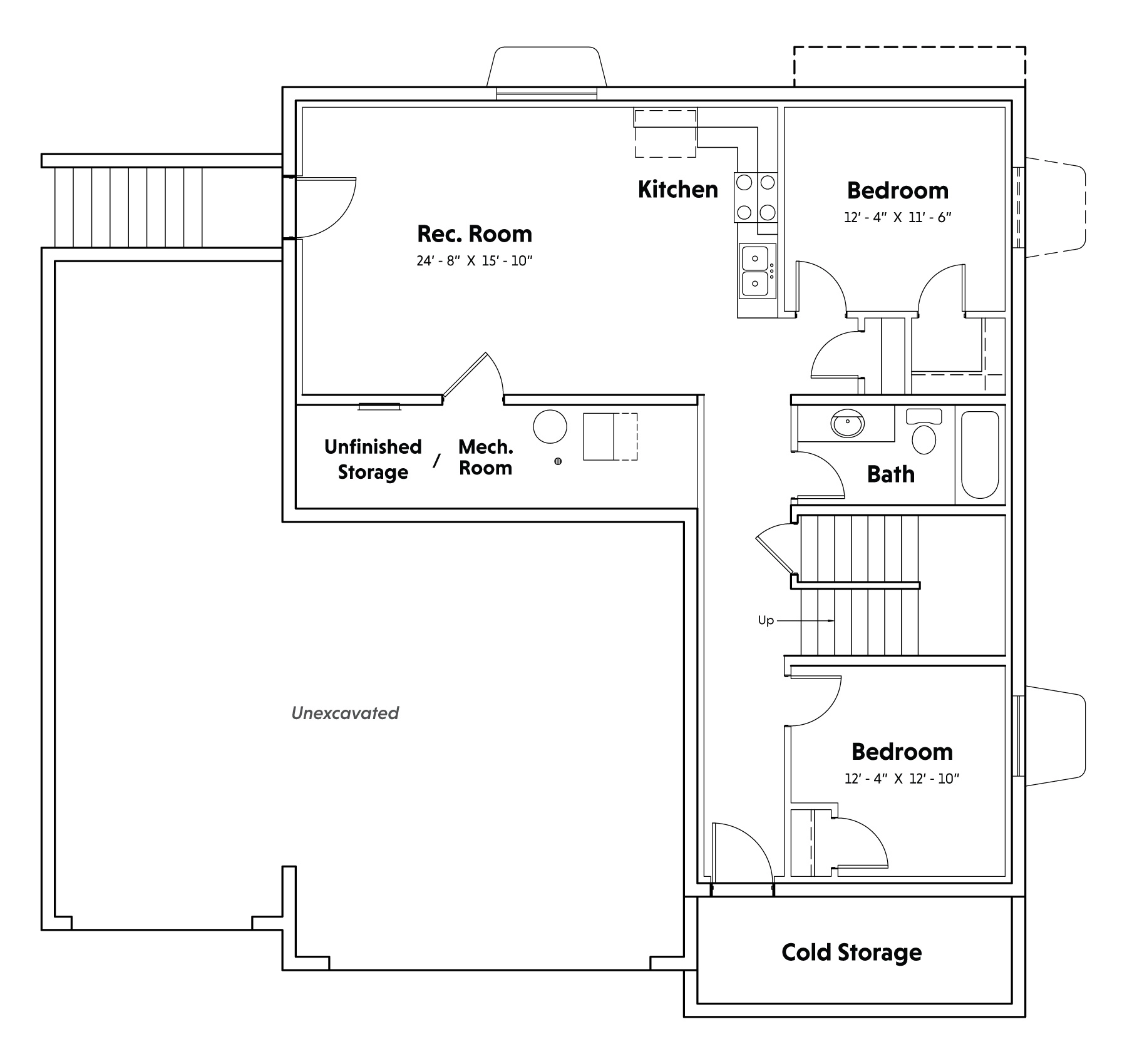
Quick Move-In | 2-Story Home, ADU Home | Priced at $859,900
3,818
Square Ft.
3,602
Finished
6
Beds
3 ½
Baths
3
Garage
0.13
Acre Lot Size
3,818
Square Ft.
3,602
Finished
0.13
Acre Lot Size
6
Beds
3 ½
Baths
3
Garage
Quick Move-In @ The Cottonwoods in Vineyard, UT
Explore More Quick Move-Ins From Home Center
*Prices are subject to change at anytime. Contact Home Center for details.
Contact Home Center
Reach out to us to schedule a tour of this home or get additional info about the following:
Financing Options
Incentives are available for this home when financing through a preferred lender.








