Quick Move-In | 2-Story Home | Priced at $599,900
3,390
Square Ft.
2,396
Finished
4
Beds
2 ½
Baths
3
Garage
0.12
Acre Lot Size
3,390
Square Ft.
2,396
Finished
0.12
Acre Lot Size
4
Beds
2 ½
Baths
3
Garage
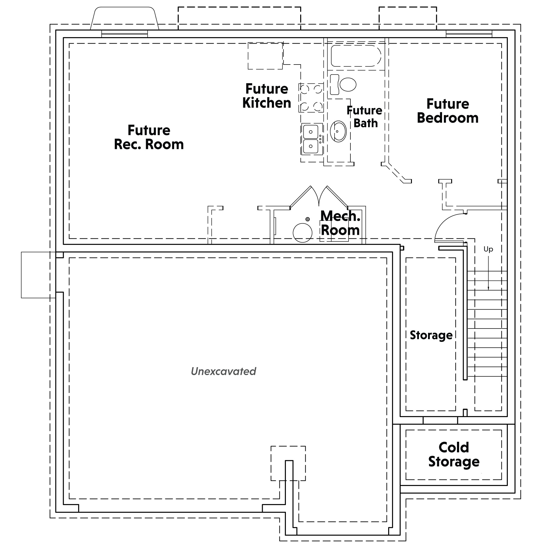
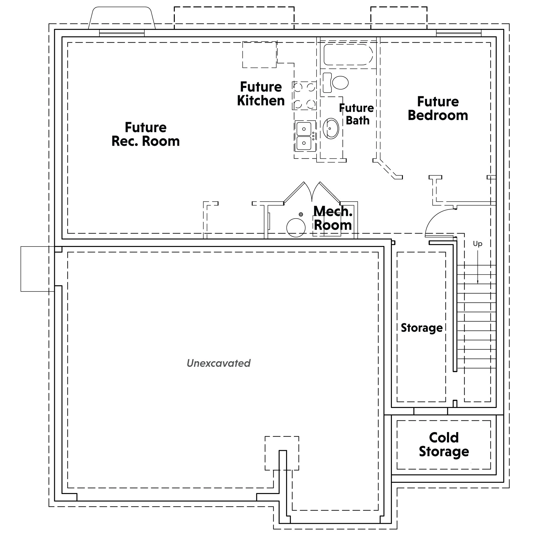
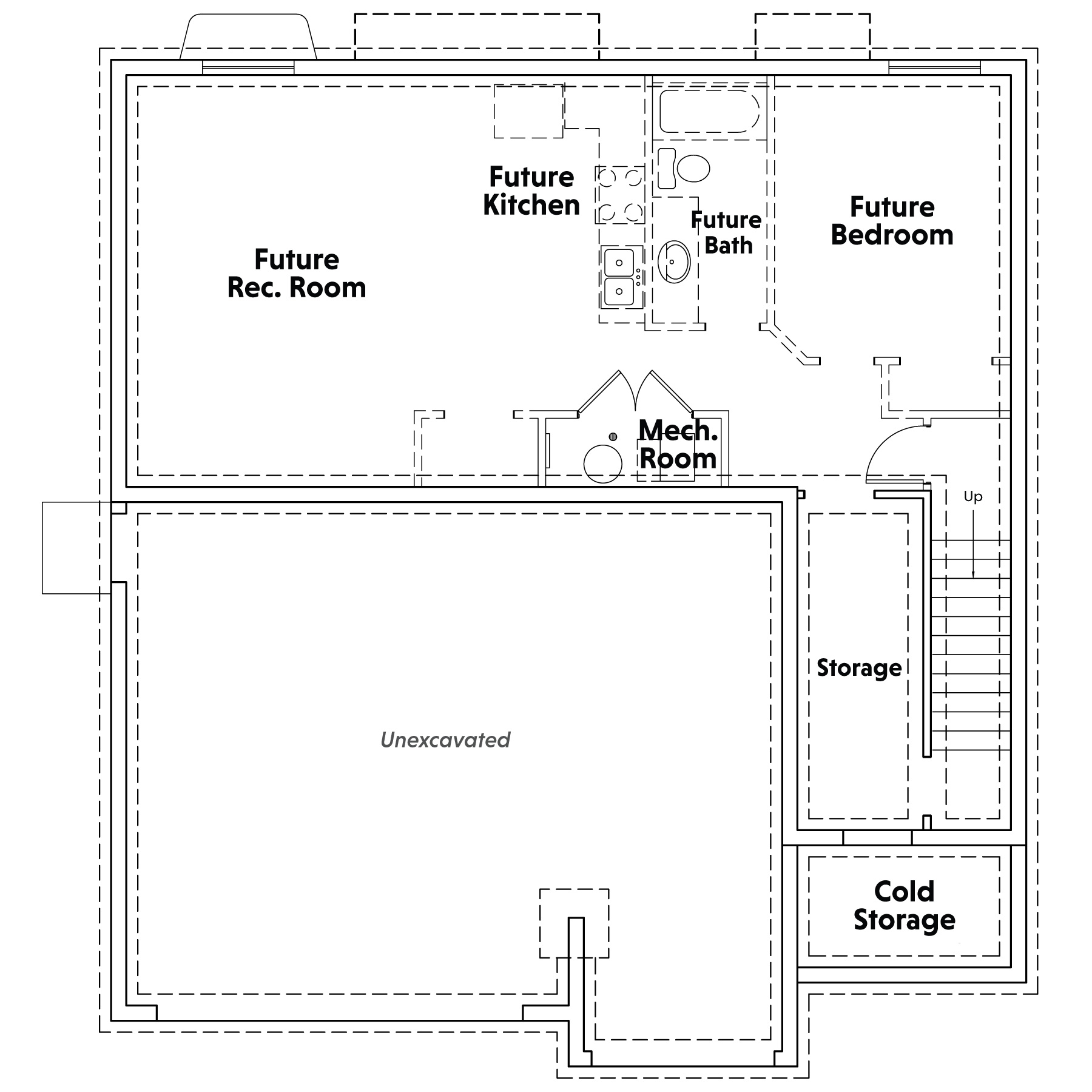
Quick Move-In @ Fox Hollow in Saratoga Springs, UT
*Payment Illustration: The loan program featured is a 3-2-1 buydown, which temporarily reduces the interest rate for the first three years before adjusting to the full note rate. Based on a 30-year fixed FHA loan for a home priced at $619,900 with 3.50% down and a qualifying credit score of 760 or higher, the estimated monthly principal and interest payments are $2,603 in year one at 3.250%, $2,943 in year two at 4.250%, $3,303 in year three at 5.250%, and $3,683 from years four through thirty at the full 6.250% note rate (7.501% APR). Payments do not include property taxes, monthly mortgage insurance premium (MIP), homeowners insurance, or HOA dues, which will increase the total monthly obligation. Buyer must qualify at the full note rate. All Home Center Construction incentives require financing through our Preferred Lender. Offer valid only for select homes in The Preserve at Fox Hollow community that close on or before October 31, 2025. Buyer/borrower must meet qualification requirements, including credit, income, and loan program guidelines. All loan terms, rates, and availability are subject to change without notice. This is not a commitment to lend. Equal Housing Opportunity. This promotion and its terms may be modified or discontinued at any time without notice.
Photos are of actual home.
Virtual Tour
Take the professional 360 degree virtual tour of this home.
The Community
Fox Hollow
Saratoga Springs, UT 84045
Explore More Quick Move-Ins From Home Center
*Prices are subject to change at anytime. Contact Home Center for details.
Contact Home Center
Reach out to us to schedule a tour of this home or get additional info about the following:
Financing Options
Incentives are available for this home when financing through a preferred lender.





































